Tiny-Haus-Siedlung in Lautenthal steht auf der Kippe
In Lautenthal soll Am Kurhaus eine Tiny-Haus-Siedlung entstehen. Ob das Projekt wirklich umgesetzt wird, steht bis Ende des Jahres fest. Foto: Heinemann
Die geplante Tiny-Haus-Siedlung in Lautenthal steht weiter auf der Kippe: Hohe Erschließungskosten und unklare Bodenverhältnisse bremsen das Projekt von Investor Uwe Jurkeit aus.
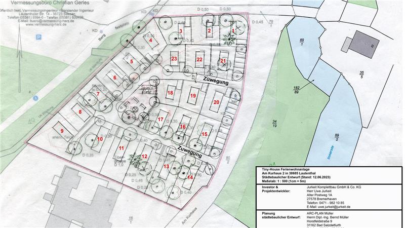
Lautenthal. Die Idee klang vielversprechend: Auf dem Gelände des ehemaligen Kurhauses in Lautenthal wollte der Bremerhavener Bauunternehmer Uwe Jurkeit eine Tiny-Haus-Siedlung errichten – 23 kleine Ferienhäuser, die den Tourismus in der Bergstadt beleben sollten. Doch fast zwei Jahre nach der ersten Vorstellung der Pläne ist noch unklar, ob das Projekt tatsächlich umgesetzt werden kann.
„Der Plan besteht grundsätzlich noch“, sagt Jurkeit im Gespräch mit der GZ. Aber ob er wirklich realisiert werden kann, steht derzeit in den Sternen. Nach einer erneuten Besprechung mit der Stadt Langelsheim habe sich gezeigt, dass die Erschließungskosten höher ausfallen als zunächst angenommen. Rund 300.000 Euro würden dafür nötig – zu viel, um das Vorhaben wirtschaftlich umzusetzen.
Was ist eigentlich der Kostentreiber?
Einer der Hauptgründe für die steigenden Kosten liegt im Straßenbau. Jurkeit hatte zunächst mit 3,50 Meter breiten Straßen geplant, doch laut Vorgaben der Stadt müssten diese mindestens vier Meter betragen. „Allein das treibt die Erschließungskosten erheblich in die Höhe“, erklärt der Bauunternehmer.
Jurkeit überlegt daher, die Straßen schmaler zu gestalten und innerhalb der Siedlung eine Einbahnstraßenregelung einzuführen. Ob das möglich wäre, ist allerdings offen. Bauamtsleiter Sven Ladwig erklärt dazu, dass der Investor mehrfach aufgefordert wurden sei, eine aktuelle Skizze vorzulegen (zuletzt im Herbst 2024). „Da uns bisher aber keine neuen Unterlagen zu Bebauung, Erschließung oder Entwässerung vorliegen, sind Festlegungen zu Straßenbreiten oder Einbahnstraßenregelungen derzeit nicht zielführend.“ Darüber hinaus möchte Jurkeit prüfen, ob das Projekt förderfähig ist. „Wenn wir eine passende Förderung finden, könnte das Projekt wieder wirtschaftlicher werden“, sagt er.

Bei einer Umsetzung finden 23 Minihäuser einen Platz in Lautenthal. Foto: Privat
Ein weiterer entscheidender Punkt ist die Bodenbeschaffenheit des Grundstücks. Schon bei der ersten Vorstellung des Projekts war bekannt, dass der Untergrund Probleme bereiten könnte – insbesondere, weil der Keller des ehemaligen Kurhauses beim Abriss stehen blieb und mit Schutt verfüllt wurde.
Ladwig bestätigt die Hintergründe: „Das Kurhaus wurde 2014 abgerissen. Die Baumaterialien wurden ordnungsgemäß getrennt, mineralische Baustoffe geschreddert und zum Verfüllen der Baugrube verwendet.“ Und weiter: „Der Abriss erfolgte, weil das Gebäude sowohl baulich als auch haustechnisch stark sanierungsbedürftig war und erhebliche Brandschutzmängel aufwies.“ Nutzungen, die eine Sanierung gerechtfertigt hätten, seien damals nicht absehbar gewesen.
Jurkeit will nun prüfen lassen, ob diese Verfüllung Auswirkungen auf den Bau der Straßen oder Fundamente haben könnte.
Entscheidung bis Jahresende
Spätestens bis Ende des Jahres will Jurkeit entscheiden, ob er das Projekt weiterverfolgt. Bis dahin hat er das Grundstück von der Stadt reserviert. Laut Ladwig ist eine Verlängerung grundsätzlich möglich, wenn der Rat dem zustimmt. Jurkeit selbst möchte aber lieber bald Klarheit schaffen. „Ich will wissen, ob es funktioniert oder nicht – eine Entscheidung soll noch in diesem Jahr fallen“, sagt er.
Als Jurkeit seine Pläne 2023 erstmals im Langelsheimer Bauausschuss vorstellte, stieß das Vorhaben auf breite Zustimmung. Geplant war eine Siedlung aus 23 Tiny Houses, die als Ferienunterkünfte dienen sollten. Jurkeit versprach sich davon einen deutlichen Schub für den Tourismus in Lautenthal – bis zu 7000 zusätzliche Übernachtungen pro Jahr seien möglich, so seine damalige Einschätzung.
Dauerhaftes Wohnen nicht möglich
Die kleinen Häuser sollten zwischen 80.000 und 120.000 Euro kosten und auf Schraubfundamenten errichtet werden, um den belasteten Boden zu schonen. Dauerhaftes Wohnen war nicht vorgesehen, die Nutzung ausschließlich touristisch. Auch die örtliche Gastronomie und Hotellerie, etwa das nahegelegene Hotel und Restaurant Berliner Bär, sollten profitieren.
Ob die Vision einer Tiny-Haus-Siedlung am Lautenthaler Kurpark Realität wird, bleibt jedoch offen. Viel hängt nun von den Ergebnissen der Bodenprüfung, möglichen Förderungen – und einer aktualisierten Planung ab.
„Wir stehen bereit, sobald uns ein tragfähiges Konzept vorliegt“, sagt Bauamtsleiter Ladwig. Bis dahin bleibt Jurkeits Idee eines: ein ambitioniertes Projekt, das auf wackeligem Grund steht – im wahrsten Sinne des Wortes.
Copyright © 2025 Goslarsche Zeitung | Weiterverwendung und -verbreitung nur mit Genehmigung.